Nachdem in der öffentlichen Gemeinderatssitzung vom 14. Juni 2023 die Pläne zum Bau einer Zahnarztpraxis und einer Apotheke an der Rottweiler Straße in Villingendorf vorgestellt wurden, neigen sich die Bauarbeiten ihrem Ende entgegen. Derweil läuft die Suche nach Betreibern sowohl der Zahnarztpraxis als auch der Apotheke auf Hochtouren.
Villingendorf – In der Sitzung waren damals die drei modernen Mehrfamilienhäuser mit Tiefgarage, die von der Bernhard Merz Immobilien GmbH errichtet werden, Gegenstand des Interesses. Das Gebäude, welches sich an der Rottweiler Straße befindet, ist von den Eheleuten Eggert aus Göllsdorf übernommen worden. Hubert Eggert und Bürgermeister Marcus Türk stehen bereits seit mehr als fünf Jahren in Kontakt bezüglich der Ansiedlung einer Zahnarztpraxis in Villingendorf. Dies sei ihm eine Herzensangelegenheit, wie der Schultes berichtet, da er in seinem Wahlkampf 2018 mehrfach auf das Manko des fehlenden Zahnarztes im Ort angesprochen worden sei. Da zum Jahresende 2022 die St. Gallus-Apotheke schloss, wurde auch die Neuansiedlung einer Apotheke auf die gemeindliche Agenda genommen. Nachdem sich mit dem Bauprojekt im Bereich Hoheim Möglichkeiten zur Unterbringung sowohl einer Zahnarztpraxis als auch einer Apotheke ergaben, war allen Beteiligten schnell klar, dass diese Chance genutzt werden muss.



Apothekenfläche für eine Neugründung
Details zu den angebotenen Flächen
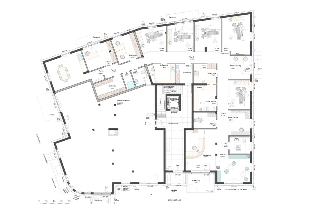
Die Räume für die Zahnarztpraxis weisen eine Fläche von 292 Quadratmetern auf und finden sich im Erdgeschoss des Neubaus. Ebenfalls im Erdgeschoss befinden sich die 162 Quadratmeter für die Apotheke. Für beide Einrichtungen sind entsprechende Parkplätze vorhanden. Durch die zentrale Lage im Ort und durch die Tatsache, dass es sich um einen Erstbezug nach Neubau handelt, bieten sie sich hervorragend für eine Neugründung an.
Derzeit wird davon ausgegangen, dass die Bauarbeiten noch in diesem Frühjahr erfolgreich abgeschlossen sein werden. Um die Suche nach Betreibern sowohl für die Zahnarztpraxis als auch für die Apotheke offensiver zu gestalten, wurden in Zusammenarbeit mit der dental EGGERT GmbH zwei Werbevideos gedreht. Diese werden nun verbreitet und sind beispielsweise auf der Internetseite der Gemeinde Villingendorf sowie auf verschiedenen Plattformen der sozialen Medien zu sehen. Ebenfalls erfolgt eine Berichterstattung in den entsprechenden Fachmedien.
Auf jeweils 1 Minute und 46 Sekunden zusammengefasst erklärt Bürgermeister Marcus Türk, dass Betreiber für beide Einrichtungen gesucht werden. Dabei geht er auf die Vorzüge Villingendorfs als liebens- und lebenswerte Gemeinde ein und verweist auch auf die gute Infrastruktur des Ortes. Besonders hervorgehoben wird dabei die verkehrsgünstige Lage der neuen Räumlichkeiten. Untermalt werden diese Informationen hierbei durch professionelle Aufnahmen von der Lage des Gebäudes sowie Ansichten von innen und außen. Abschließend bittet der Schultes potenzielle Interessentinnen und Interessenten darum, sich zu melden: „Wo wir können, unterstützen wir Sie gerne“ versichert Türk.
