Rottweil – Im Flächennutzungsplan steht es schon lang, in zwei Jahren soll es verwirklicht werden, das Baugebiet „Immengärtle“ in Zepfenhan.
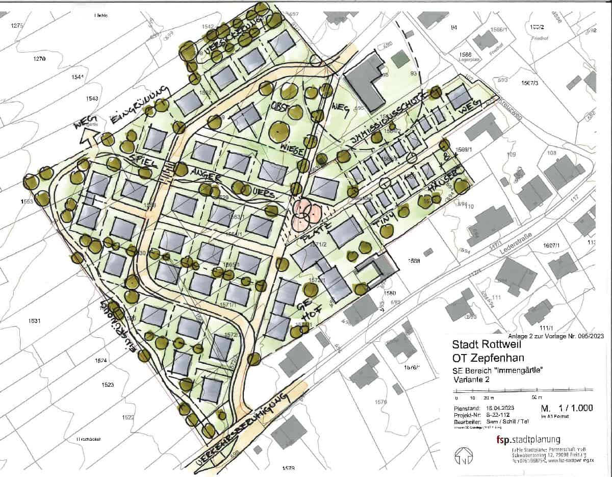
Dreieinhalb Hektar umfasst das Gebiet, das von der Kepplerstraße quer durchschnitten wird. Zwei Planungs-Varianten hat Christian Sammel von der Firma fsp Stadtplanung den Räten vorgestellt. In Variante eins ist die Richtung der Häuser parallel zur Lederstraße, der Durchgangsstraße aus Richtung Feckenhausen. 27 Einfamilienhäuser, sechs Doppelhäuser, acht Tiny-Häuser und Flächen für eine gewerbliche Nutzung sind hier vorgesehen. Bei der Variante zwei ist die Bebauung an der Kepplerstraße ausgerichtet. 29 Einfamilienhäuser, zwölf Tiny-Häuser sowie Flächen für gewerbliche Nutzung sieht es vor.
OB Ruf machte den Rat auch darauf aufmerksam, dass die Lederstraße am Ortseingang, wo auch die Kepplerstraße abzweigt, eine „Verschwenkung“ erfahren soll, um den Verkehr zu bremsen. Dies sei, ähnlich wie beim Kreisverkehr in Hausen, aus verkehrlichen Gründen nicht erforderlich, daher müsse die Stadt die Kosten dafür auch selbst tragen. Wobei er klarmachte, dass die Kosten auf den Grundstückspreis aufgeschlagen würden. Womit dann der Quadratmeter Bauplatz, so schätzte er es ein, über 200 Euro kommen würde.

Weil das Baugebiet im Vergleich zur Bevölkerungszahl sehr groß sei, wolle er die Erschließung in zwei oder drei Tranchen vornehmen lassen. Das sei auch das einzige Neubaugebiet für Zepfenhan bis 2035 im Flächennutzungsplan.
Der Zepfenhaner Ortschaftsrat hatte bereits am Montag darüber gesprochen. Dabei, so wurde berichtet, gab es eine Tendenz zu Variante zwei. Gewünscht worden seien unter anderem eine Verschwenkung von beiden Fahrspuren, nicht nur einer, am Ortseingang, eine nachhaltige Wärmeversorgung und deutlich weniger Tiny-Häuser.

Mit der Einrichtung eines Baugebiets einverstanden, aber im Detail mit Änderungswünschen: So lässt sich die Diskussion im Gemeinderat zusammenfassen. Harald-Armin Sailer (FDP) vermisste als erster Geschosswohnbauflächen im Baugebiet – als Beispiel für den Bedarf nannte er ältere Menschen, die gerne aus ihrem Einfamilienhaus mit Garten ausziehen, aber auch am Ort bleiben wollten. Außerdem sei der Mehrzahl der Häuser in der Preisklasse um 850.000 Euro – „junge Familien können sich das nicht leisten.“ Er plädierte daher für mehr Doppel- und Reihenhäuser.
Bedenken, ob wirklich so viel Bedarf an Tiny-Häusern besteht, äußerte Gabriele Schneider (Grüne). „Nicht über den Bedarf hinaus planen“ forderte Dr. Peter Schellenberg (FWV) auch im Hinblick darauf, dass die Nachfrage nach Baugrundstücken deutlich sinke. Auch er sprach sich für Geschosswohnungsbau aus, wie auch Arved Sassnick (SPD+FfR). Elke Reichenbach (SPD+FfR) fand Teile der Planung „aus der Zeit gefallen“, auch sie wollte mehr Doppel- und Reihenhäuser.
Kritik übte Hermann Breucha (FWV) an der Einstufung als Mischgebiet – er wollte nicht, dass an allen Ecken störende Betriebe angesiedelt werden.
„Zentrale Wärmeversorgung ist absolut notwendig“, sagte Ingeborg Gekle-Maier und drückte damit aus, was wohl die meisten ihrer Kolleginnen und Kollegen fanden. Jurist Ruf meinte dazu, der dafür notwendige Anschluss- und Benutzungszwang gehöre nicht in den Bebauungsplan, sondern in die Kaufverträge der Baugrundstücke. Er nahm dann in den Beschlussvorschlag auf, „.unter der Prämisse, dass Doppelhäuser und Reihenhäuser in die Planung mit aufgenommen werden. Das gilt auch für ein mehrgeschossiges Wohngebäude.“ Erschließung und Verkauf sollen in Etappen erfolgen.
Dem konnte der gesamte Rat folgen: Es gab ein einstimmiges Ergebnis. „Ein starkes Votum“, befand Ruf. Die Planung übernimmt nun die Verwaltung, die dann den ausgearbeiteten Bebauungsplan wieder dem Gemeinderat vorlegt.
