Bald mehr Wohnungen und Häuser in Schramberg möglich

163 Aufrufe
"Planie am Sonnenberg": Nach Jahrzehnten im Dornröschenschlaf möchte ein Investor dieses Filetgrundstück mit Mehrfamilienhäusern bebauen. Archiv-Foto: him

Schramberg. Gleich mit drei Bebauungsplänen beschäftigt sich der Ausschuss für Umwelt und Technik (AUT) am Donnerstagabend: „Planie am Sonnenberg“ in Schramberg Tal, „Erweiterung Haldenhof“ in Sulgen und „Kehlenstraße I“ in Waldmössingen.

„Planie“

Beim „Vorhabenbezogenen Bebauungsplan Planie am Sonnenberg“ soll der Gemeinderat nächste Woche den Aufstellungsbeschluss fassen. Im AUT wird vorberaten. Vor dreieinhalb Jahren hatte der Rat den Verkauf der ehemaligen Tennisplätze über ein kompliziertes Auswahlverfahren beschlossen. Vor zwei Jahren hatte der Wettbewerbssieger seine Pläne im Gemeinderat vorgestellt.

So sollen die drei Mehrfamilienhäuser aussehen. Grafik: Stadt

Seither hatte die Stadtverwaltung gemeinsam mit dem Vorhabenträger die Pläne überarbeitet und parallel den Bebauungsplan vorbereitet. Im Dezember habe die Wirtschaftsförderung den Kaufvertrag mit dem Investor abgeschlossen. Nun müsse der Investor noch die notwendigen Gutachten zum Boden, zur Umwelt und zum Artenschutz liefern. Frühestens vor der Sommerpause könne der Rat dann die Offenlage beschließen. Zuvor sei noch eine Informationsveranstaltung für die Öffentlichkeit geplant, heißtes in der Vorlage.

Haldenhof

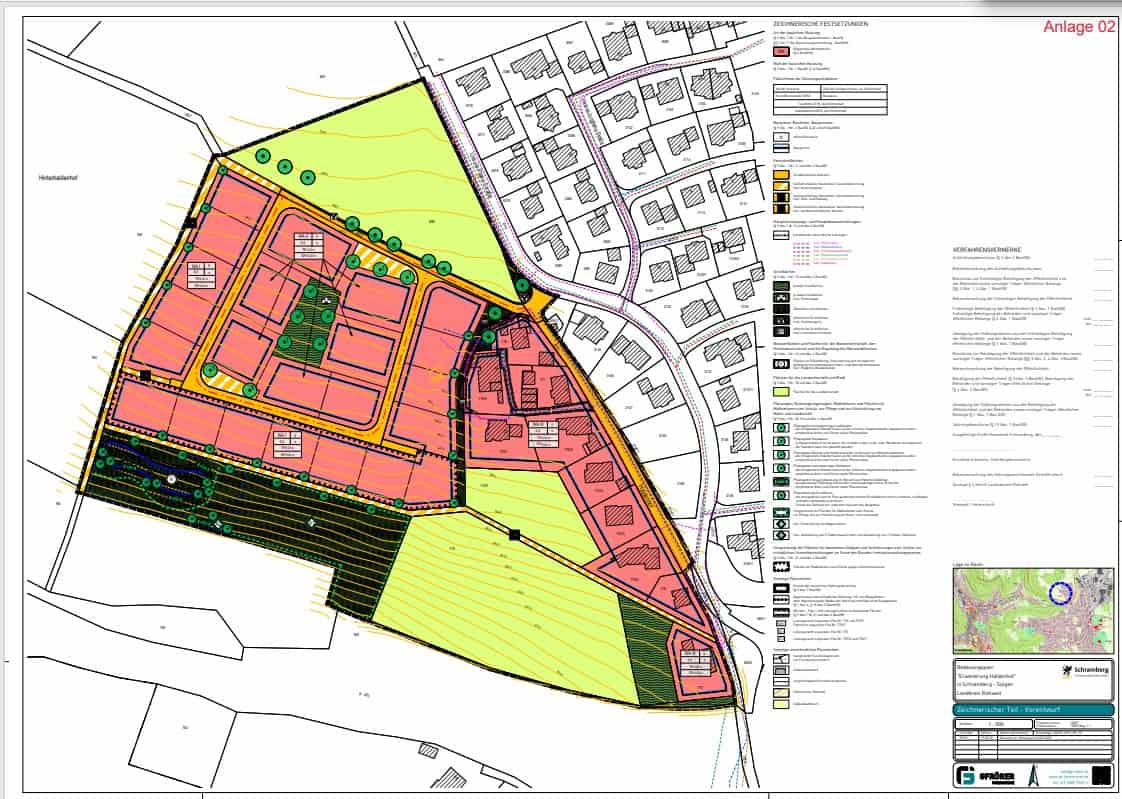
Für den Haldenhof legt die Verwaltung den Bebauungsplanvorentwurf vor. Auch hier hatte der Rat bereits 2019 einen Beschluss für einen Bebauungsplan gefasst. Weil die Stadt ein wichtiges Grundstück nicht kaufen konnte, musste 2021ein neuer Beschluss gefasst und ein anderes Verfahren gewählt werden. Der Plan umfasst zwei Neubaugebiete und die Bestandsbebauung entlang der Haldenstraße.

Der Bebauungsplanvorentwurf für das Neubaugebiet Haldenhof. Grafik: Stadt

Im Neubaugebiet soll es einen äußeren Ring mit maximal zwei Vollgeschossen und drei Wohneinheiten je Einzelhaus geben. In einem Innenteil mit höheren Gebäuden sollen bis zu acht Wohneinheiten je Gebäude zugelassen sein. Ab sechs Wohneinheiten werden Tiefgaragen vorgeschrieben, um Versiegelungen durch Parkplätze zu verhindern. Der dritte abschnitt soll die bestehende Bebauung baurechtlich absichern und städtebaulich vertretbare Maßnahmen ermöglichen.

Kehlenstraße

In Waldmössingen ist man am weitesten: Der Bebauungsplan Kehlenhof 1 ist fertig und es können die Bürger und Behörden beteiligt werden. Die Stadtplaner haben den ursprünglichen Plan „aufgrund neuer Erkenntnisse“ angepasst. Neben Einfamilien- und Doppelhäusern sind nun auch Mehrfamilienhäuser möglich. Aber auch alternative Wohntypen wie Tiny- oder Smallhouses sollen ermöglicht werden. Auch die Erschließung des Gebiets ändert sich.

Bebauungsplanentwurf Kehlenstraße. Grafik: Stadt

Die Gutachter kommen zum Ergebnis, dass die Geruchsbelästigung durch einen landwirtschaftlichen Betrieb die Grenzwerte nicht überschreitet. Der Lärm vom Schützenhaus müsse allerdings durch schallreduzierende Maßnahmen gesenkt werden. Nach einem Gemeinderatsbeschluss wird als nächstes die Offenlage erfolgen. Danach kommt der Satzungsbeschluss.

Teilen Sie diesen Beitrag
... begann in den späten 70er Jahren als freier Mitarbeiter unter anderem bei der „Schwäbischen Zeitung“ in Schramberg. Mehr über ihn hier.