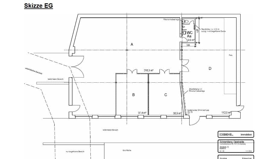
Ein weiteres Großprojekt hat sich der Verein Szene 64 vorgenommen. Der Verein möchte – mit Unterstützung der Stadt – das Gebäude 10 auf dem Junghans Gelände kaufen und zu einer Konzerthalle für 500 bis 600 Besucher bei Stehkonzerten umbauen. Das geht aus einer Vorlage für den Gemeinderat hervor.
Schramberg. In der Vorlage, über die der Verwaltungsausschuss am Donnerstag beraten wird, heißt es, der Verein plane einen weiteren größeren „rustikalen“ Veranstaltungsort zu schaffen. „Zudem soll ein Magazinraum für die Lagerung von Utensilien und organisatorischen Abläufen bei Veranstaltungen eingerichtet werden.“
Die Räume in der Szene64 seien ausgelastet, heißt es in einer Projektskizze des Vereins. Für Konzerte bekannterer Künstler seien die Räume im Bau 64 zu klein, weil diese „oft eine Mindestkapazität von 500 Besuchern fordern, um die Veranstaltung wirtschaftlich tragbar zu machen“.


Den Bau 10 in direkter Nachbarschaft zum großen Parkplatz auf dem Junghansareal könnte der Verein auch nutzen, um dort die Infrastruktur für Open-Air-Veranstaltungen mit etwa 2000 Personen bereit zu stellen, heißt es in der Projektskizze.
Kaufangebot
De Eigentümer habe dem Verein das Gebäude zum Kauf angeboten. Mit Nebenkosten würde der Bau 10 etwa 174.000 Euro kosten. Der Verein verpflichte sich, 50.000 Euro aus Eigenmitteln bereitzustellen, heißt es in der Projektskizze.
Zusätzlich hoffe der Verein auf einen Investitionszuschuss von 30 Prozent, das wären 52.000 Euro, von der Stadt Schramberg. Die verbleibenden 71.800 Euro möchte der Verein durch einen kurzfristigen Überbrückungskredit finanzieren, der „durch Spendenaufrufe und Benefizveranstaltungen schnell abgebaut werden soll.“
Noch etliche offene Fragen
In der Vorlage bestätigt die Verwaltung, dass nach den Vereinsförderrichtlinien ein Zuschuss von 15 bis 30 Prozent für Investitionen möglich sei. „Die formellen Voraussetzungen zu einer Zuschussgewährung nach den Vereinsförderrichtlinien der Stadt Schramberg sind gegeben.“
Es heißt dort aber auch, dass die Frage der Parkplätze für den neuen Veranstaltungsraum noch geklärt werden muss. Auch gebe es „aktuell noch kein detailliertes Sanierungskonzept“.
Schließlich warnt Fachbereichsleiterin Susanne Gwosch, es sei damit zu rechnen, „dass in den nächsten Jahren weitere Anträge auf Investitionskostenzuschüsse für die Renovierung des Gebäudes folgen werden“.
Eine gewisse Klarheit darüber, in welcher Höhe solche Anträge zu erwarten seien, wäre schon jetzt, vor dem Einstieg in das Projekt, „wünschenswert“, so Gwosch. Deshalb soll der Verwaltungsausschuss auch noch nichts entscheiden, sondern erst im Zuge der Haushaltsberatungen.
